Eladó Téglalakás, Nyíregyháza

#180801395

Eladó Téglalakás

51.24 millió Ft

Nyíregyháza Belváros
Alapterület:
49 m2
Szobák száma:
2
Állapot:
Új építésű
Építési mód:
Tégla
CSOK igényelhető
Jó közlekedéssel

Kérjen személyes bemutatást!
Adja meg adatait, és hogy mikor érne rá!

Az Adatkezelési tájékoztatót elolvastam és elfogadom.

Megfelelő időpontok

Hétköznap délelőtt
Hétköznap délután
Hétköznap este
Hétvégén délelőtt
Hétvégén délután
Hétvégén este
Kérés elküldése
2. Emelet
Hőszigetelt
Cirkó
Kelet
2
Összkomfort
Bevezetve (230 Volt)
Van, saját vízórával
Vezetékes gáz
Közműhálózatba bekötve

Befektetésre is!

Nyíregyháza belvárosában , prémium minőségű, új építésű lakások!

 

A társasházban  10 lakás, 7 garázs, 5 kocsibeálló és egy üzlethelyiség került kialakításra . 2 emeletes

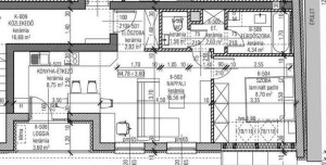
A lakásokban amerikai konyhás nappali, hálószoba, fürdőszoba, WC, előtér, erkély található. 

lakás : 44,78 m2, loggia: 3,6m2

 - 2.emeleti

- tégla építésű, szigetelt
-  antracit korcolt fémlemezű nyeregtető
-  műanyag nyílászárók
-  kondenzációs kombi kazánnal, radiátoros illetve padlófűtés 
-  laminált padló illetve  járólap
- földszinti közös tároló
- A lakáshoz önálló garázs 12,5 M Ft-ért, vagy udvari beálló 3,5 M Ft-ért vásárolható.


 Várható átadás: 2026. év vége

Az ingatlan elhelyezkedése, energetikai mutatói biztosítják nem csak a kényelmet, hanem az értékállóságot is!

 

Bővebb információkért, teljes körű, ingyenes bankfüggetlen ügyintézéssel várom hívását!

Helyiség Méret (m2)
Előszoba 2.83
Konyha + étkező 8.75
WC 1.58
Fürdőszoba 4.34
Előtér 2.03
Szoba 8.7
Nappali 16.56
Loggia 3.6